What Are You Looking For?
Item NO.:
CH-JA01Material:
Cold-Rolled SteelFinish:
Nickel PlatedWeight:
91g (±2g)Opening Degree:
105°Diameter Of Hinge Cup:
35mmDepth Of Hinge Cup:
11.5mmRange For Door Thickness:
14-20mmDimension Of Door:
3 -7mmCup Hole Distance:
45mm/48mm/52mmPacking:
200 Pcs / CartonProduct Description
|
Round-Head Aluminum Frame Hinge: Featuring a classic round-head design, this aluminum frame hinge is specially engineered to integrate seamlessly with modern aluminum-profile cabinets, offering a combination of visual harmony and functional strength.
Dual-Layer Electroplated Protection (Copper Base + Nickel Finish): Enhanced with a dual-layer electroplating process—copper base plating for improved adhesion and corrosion resistance, topped with a sleek nickel layer for surface durability and elegant shine.
Single-Stage Spring Mechanism: Equipped with a one-stage spring system, this hinge provides smooth, consistent operation with a stable door-closing action, ensuring a quiet and reliable performance throughout daily use.
Hydraulic-Fixed Cushioned Closing: Featuring an internal hydraulic damper in a fixed configuration, this hinge guarantees gentle and shock-free closing, reducing wear on both hinge and door while eliminating noise and impact.
Non-Removable Base for Permanent Stability: Designed with a non-removable base plate, this hinge provides maximum installation rigidity and alignment permanence, ideal for applications where frequent door detachment is not required. |
|
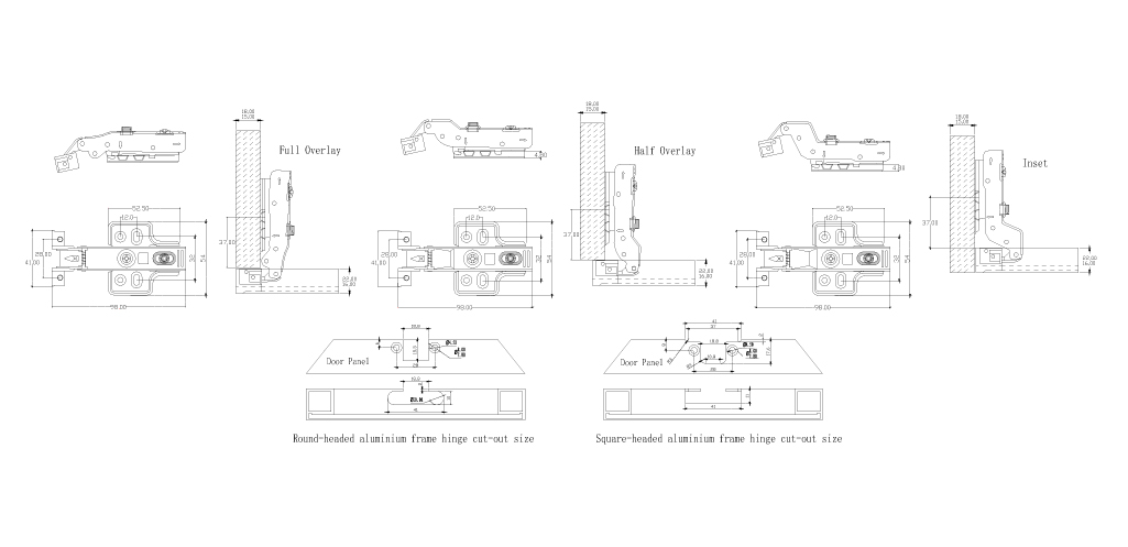
Product Drawing
This drawing provides a full overview of the mounting positions and product dimensions, making installation easier and more accurate.
Diameter of hinge cup: 35 mm
Deep of hinge cup: 11.5 mm
Cup hole distance: 48 mm
*For customized sizes, OEM and ODM service is available.

Product Application
Ideal for all types of Living room, Bedroom, Kitchen, Bathroom.
Designed for smooth movement, strong durability and everyday convenience.
The advanced Nickel Plated finish ensures the hinge remains rust-free even in humid environments.

Quality Control & Testing
"Details Make a Difference" - Our Rigorous QC Process At FORMOR, quality isn't just a promise; it's a process verified by data.
Salt Spray Test: 24 hours verified resistance to corrosion.
Cycle Testing: Proven to withstand 30,000+ open/close cycles.
Inspection: 100% standard product inspection before packaging to determine the ultimate feeling of use.

OEM & ODM Service
1. Product Logo Customization
We offer laser marking, stamping logo options to match your branding needs.
Customized logo solutions are available for hinges, drawer systems, and other hardware products.
2. Outer Carton Customization
Cartons can be customized with your logo, color, labeling, and packaging specifications.
We support OEM carton design to ensure safe shipping and a premium brand presentation.
3. Color Polybag / Logo Polybag / Blister / Paper Cover Customization
Color Polybag / Logo Polybag / Blister / Paper Cover can be customized with your logo, labeling, and packaging specifications.
We support OEM carton design to ensure safe shipping and a premium brand presentation.
4. Mould Customization
We can develop new moulds based on your drawings or samples.
Our engineering team supports structural adjustments, prototype verification, and full OEM customization for hinges, slides, and drawer systems.
5. Material Customization
Materials can be customized with premium Shanghai Shinny, Shanghai Matt, Q235 and Jieyang cold-rolled steel options.
We provide material selection support to meet different budget levels, performance requirements, and target markets.
6. Surface Finishing Customization
We offer multiple surface finishing options to meet different design and corrosion-resistance requirements.
Available finishes include single-layer nickel plating, copper + nickel double-layer plating, titanium plating, black plating, black spraying, and gold spraying.


FAQ
Q: What colors and finishes are available?
A: Standard finishes include nickel, black, titanium, and gold. Custom colors are available upon request.
Q: Are your hinges easy to install?
A: Yes, our hinges are designed for quick and easy installation, with clip-on options available for tool-free mounting.
Q: Can I mix different hinge types in one project?
A: Yes, we can recommend compatible hinge solutions based on your cabinet design and usage requirements.
Q: Do you provide hinges for glass or aluminum frame doors?
A: Yes, we offer special hinge solutions designed for glass and aluminum frame cabinet doors.
Leave A Message
Scan to wechat :